
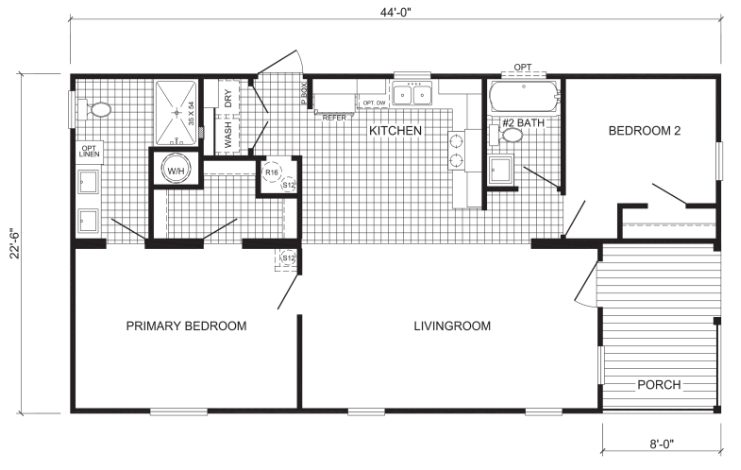
Discover what modern pre-fabricated housing has to offer by exploring the Scotbilt Community Series . This home is efficiently crafted to maximize space and size where it counts. It's a 2 bed, 2 bath home that offers a unique layout and superior construction standards, all at an attractive price point. Make this model your own with an array of customization options designed to fit your lifestyle and preferences. Check out the floor plan and virtual tour to give you a more in-depth look at this home.
Complete the form and a local Regional Homes representative in your area will contact you shortly.